






IBA-Dock, Hamburg
Objekt:
Ausstellungs- und Verwaltungsgebäude der Internalionalen Bauausstellung 2013 IBA Hamburg, Hamburg-Veddel
Auftraggeber:
IBA Hamburg GmbH
Entwurf:
Prof. Slawik, Hannover
LPH 5&6 und Künstlerische Oberleitung:
bof architekten
Baubeginn 2009
Fertigstellung 2010
Tragwerksplaner:
IMS Ingenieurgeselschaft mbH, Hamburg
Technische Gebäudeausrüstung:
IB Bernd Herkommer, Hamburg
Fotos: IBA, bof
BDA Hamburg Architektur Preis 2010: Würdigung
Plakette des Deutschen Solarpreises 2011, in der Kategorie Eigentümer/Betreiber von Anlagen zur Nutzung Erneuerbarer Energien, verliehen von EUROSOLAR e.V.
Das IBA DOCK wurde als eines von 20 Projekten als deutscher Beitrag zur Architekturbiennale in Sao Paulo 2011 gezeigt. Die Auswahl der präsentierten Beiträge erfolgte in Zusammenarbeit der Bundesarchitektenkammer mit dem Bundesministerium für Verkehr, Bau und Stadtentwicklung und der Bundesingenieurkammer.
Auszug Erläuterungstext:
Am Müggenburger Zollhafen ist gegenüber dem Auswanderermuseum BallinStadt Deutschlands größtes schwimmendes Ausstellungs- und Bürogebäude entstanden. Das IBA DOCK ist seit Februar 2010 neue Heimat der IBA Hamburg GmbH.
Klimaneutral und innovativ
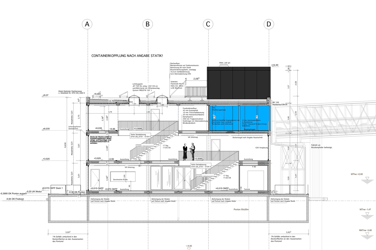
Das IBA DOCK ist ein Exponat innovativer Bau- und Energiespar-Technologien: Das Gebäude ruht auf einem 50 Meter langen und 26 Meter breiten Beton-Ponton, die Aufbauten sind in Modulbauweise aus Stahl gefertigt. Das spart Gewicht, und ermöglicht, einen Teil der Aufbauten für den Fall eines Transports abzunehmen, so dass das IBA DOCK dann auch unter niedrigen Brücken hindurchfahren kann.
Wie alle IBA-Bauprojekte setzt auch das IBA DOCK in Sachen Klimaschutz Standards: zusätzlich zu 25 cm stark gedämmten Außenwänden nutzt das IBA DOCK Sonne und das Wasser der Elbe zur Energiegewinnung. Eine Sole/Wasser-Elektro-Wärmepumpe beheizt das Gebäude. Die von der Wärmepumpe benötigte Umweltwärme wird durch einen im Boden des Betonpontons integrierten Wärmetauscher der Elbe entnommen und / oder von Solarthermiekollektoren geliefert. Der Strombedarf der Wärmepumpe wird durch eine Photovoltaikanlage auf dem IBA DOCK bilanziell gedeckt. Weitere Kühl- oder Heizenergie wird nicht benötigt.
Neuer Umgang mit Sturmflut
Ein weiterer wichtiger Aspekt des IBA DOCK: Es steht für einen neuen Umgang mit der Hochwassergefahr: Der Ponton ist an Dalben befestigt, an denen er sich mit der Tide täglich 3,5 Meter auf und ab bewegt. Sollte eine starke Sturmflut kommen, schwimmt das IBA DOCK mit dem Wasser auf. Statt immer höherer Deiche passt sich das Gebäude der Natur an - ein zukunftsweisendes Konzept für das Bauen in Hochwasserlagen.
(Text: IBA Hamburg GmbH)
Ausstellungs- und Verwaltungsgebäude der Internalionalen Bauausstellung 2013 IBA Hamburg, Hamburg-Veddel
Auftraggeber:
IBA Hamburg GmbH
Entwurf:
Prof. Slawik, Hannover
LPH 5&6 und Künstlerische Oberleitung:
bof architekten
Baubeginn 2009
Fertigstellung 2010
Tragwerksplaner:
IMS Ingenieurgeselschaft mbH, Hamburg
Technische Gebäudeausrüstung:
IB Bernd Herkommer, Hamburg
Fotos: IBA, bof
BDA Hamburg Architektur Preis 2010: Würdigung
Plakette des Deutschen Solarpreises 2011, in der Kategorie Eigentümer/Betreiber von Anlagen zur Nutzung Erneuerbarer Energien, verliehen von EUROSOLAR e.V.
Das IBA DOCK wurde als eines von 20 Projekten als deutscher Beitrag zur Architekturbiennale in Sao Paulo 2011 gezeigt. Die Auswahl der präsentierten Beiträge erfolgte in Zusammenarbeit der Bundesarchitektenkammer mit dem Bundesministerium für Verkehr, Bau und Stadtentwicklung und der Bundesingenieurkammer.
Auszug Erläuterungstext:
Am Müggenburger Zollhafen ist gegenüber dem Auswanderermuseum BallinStadt Deutschlands größtes schwimmendes Ausstellungs- und Bürogebäude entstanden. Das IBA DOCK ist seit Februar 2010 neue Heimat der IBA Hamburg GmbH.
Klimaneutral und innovativ
Das IBA DOCK ist ein Exponat innovativer Bau- und Energiespar-Technologien: Das Gebäude ruht auf einem 50 Meter langen und 26 Meter breiten Beton-Ponton, die Aufbauten sind in Modulbauweise aus Stahl gefertigt. Das spart Gewicht, und ermöglicht, einen Teil der Aufbauten für den Fall eines Transports abzunehmen, so dass das IBA DOCK dann auch unter niedrigen Brücken hindurchfahren kann.
Wie alle IBA-Bauprojekte setzt auch das IBA DOCK in Sachen Klimaschutz Standards: zusätzlich zu 25 cm stark gedämmten Außenwänden nutzt das IBA DOCK Sonne und das Wasser der Elbe zur Energiegewinnung. Eine Sole/Wasser-Elektro-Wärmepumpe beheizt das Gebäude. Die von der Wärmepumpe benötigte Umweltwärme wird durch einen im Boden des Betonpontons integrierten Wärmetauscher der Elbe entnommen und / oder von Solarthermiekollektoren geliefert. Der Strombedarf der Wärmepumpe wird durch eine Photovoltaikanlage auf dem IBA DOCK bilanziell gedeckt. Weitere Kühl- oder Heizenergie wird nicht benötigt.
Neuer Umgang mit Sturmflut
Ein weiterer wichtiger Aspekt des IBA DOCK: Es steht für einen neuen Umgang mit der Hochwassergefahr: Der Ponton ist an Dalben befestigt, an denen er sich mit der Tide täglich 3,5 Meter auf und ab bewegt. Sollte eine starke Sturmflut kommen, schwimmt das IBA DOCK mit dem Wasser auf. Statt immer höherer Deiche passt sich das Gebäude der Natur an - ein zukunftsweisendes Konzept für das Bauen in Hochwasserlagen.
(Text: IBA Hamburg GmbH)
Info Schliessen